通过细腻的设计与舒适的功能,让家成为一个浪漫与实用并存的空间。将经典元素融入现代生活,用法式线条、角花勾勒出精致优雅的调性,搭配实木线条交织出丰富的空间层次。
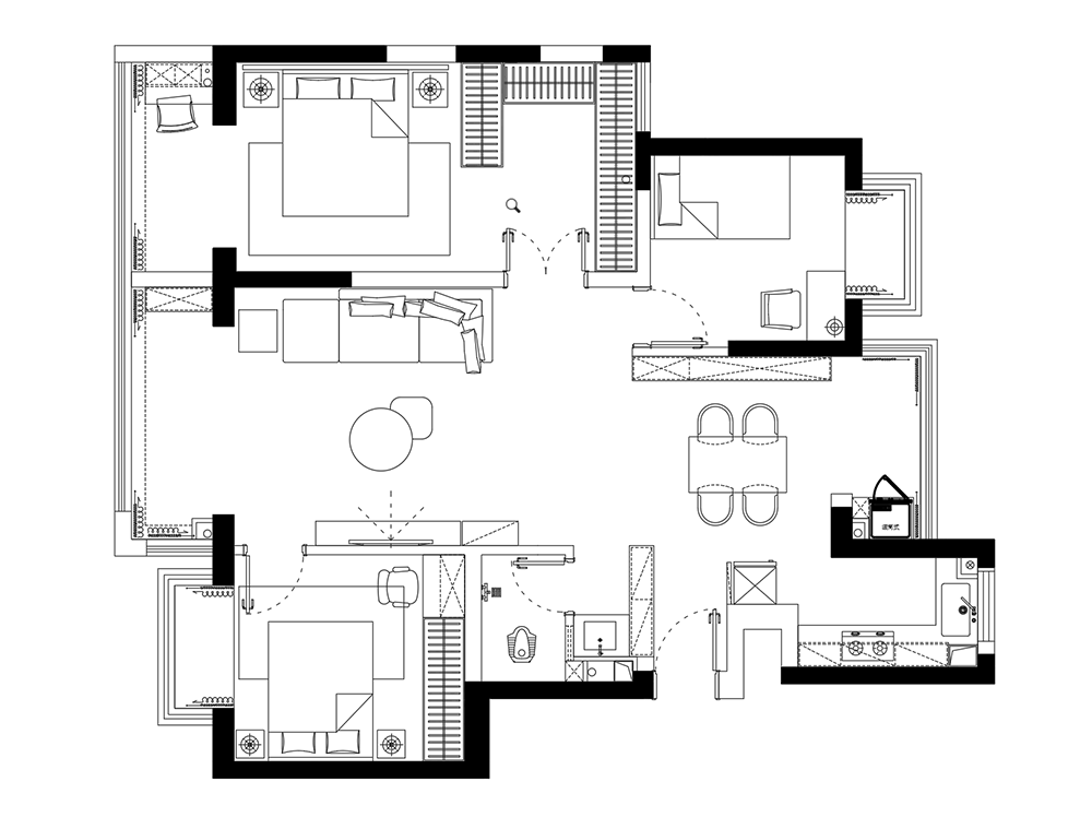
客厅 丨 LIVING ROOM
奶白色主体墙面、柔美的弧形造型和细腻的法式线条结合,营造法式的浪漫情调,在古典主义的灵感下赋予空间意义,让每一处细节上演各自的美丽故事。



材质与色调的精妙融合奠定基调,细节之处尽显独特韵味。细腻的纹理刻印在墙面,一笔一画,延续法式身影,萦绕在居者身边,行至生活深处。


生活的活力与空间的本质,因巧妙布局的启迪而紧密相连。


餐厅 丨 THE CORRIDOR
精美与复古的雕琢,创造出独特而和谐的感官,每一处的细节都透露出业主对美感和艺术的追求,在享受美食的同时,也能沉浸在这份精心营造的氛围之中,感受生活的美好与惬意。


厨房 丨 KITCHEN
浓郁的黑白搭配,勾勒出精致的纹理和灵动的气息,体验别具一格的复古感。

主卧 丨 MASTER BEDROOM
用纯白的场景,打造不同寻常的纯净睡眠空间,构筑一隅如诗如梦的避世乌托邦,为当代生活注入无线可能。


简约的设计风格中蕴含着巧妙的收纳细节,不仅满足了日常存储需求,还保持了空间的整洁与开阔。

次卧丨 SECOND BEDROOM
静谧的空间,在规整有序的线条中勾勒出高级感,回归实用主义的朴实纯粹,让每个功能性空间充满舒适。
